氣象監測系統
產品型號:FT-QC10
產品簡介:氣象(xiang)監(jian)測(ce)系(xi)統(tong)又稱氣象(xiang)站(zhan)監(jian)測(ce)系(xi)統(tong)、氣象(xiang)環境在線(xian)監(jian)測(ce)系(xi)統(tong),氣象(xiang)監(jian)測(ce)系(xi)統(tong)是一款基于物聯網技術和無(wu)線(xian)通(tong)訊技術研發而成無(wu)人值守氣象(xiang)多要素自(zi)動氣象(xiang)站(zhan),通(tong)過傳(chuan)感器監(jian)測(ce)環境的(de)要素信息。
市(shi)場價格:¥ 6600元
聯系方式:15689257565
相關產品
一、氣象監測系統產品簡介
氣(qi)(qi)(qi)(qi)象(xiang)監(jian)測(ce)系(xi)統(tong)又稱氣(qi)(qi)(qi)(qi)象(xiang)站監(jian)測(ce)系(xi)統(tong)、氣(qi)(qi)(qi)(qi)象(xiang)環境(jing)在(zai)線監(jian)測(ce)系(xi)統(tong),氣(qi)(qi)(qi)(qi)象(xiang)監(jian)測(ce)系(xi)統(tong)是一款(kuan)基于物聯網技術和(he)無(wu)(wu)線通訊技術研發(fa)而成無(wu)(wu)人值(zhi)守氣(qi)(qi)(qi)(qi)象(xiang)多要素自動氣(qi)(qi)(qi)(qi)象(xiang)站,通過(guo)傳(chuan)感器(qi)監(jian)測(ce)環境(jing)的(de)要素信息。FT-QC10氣(qi)(qi)(qi)(qi)象(xiang)監(jian)測(ce)系(xi)統(tong)是一款(kuan)高度(du)集成、低功耗、可快速安裝、便于野外監(jian)測(ce)使用的(de)高精度(du)氣(qi)(qi)(qi)(qi)象(xiang)觀測(ce)設備。
該設備(bei)由(you)氣象傳感器,采集器,太(tai)陽能供電(dian)系統,立桿支架,云平臺五部分組成(cheng)。免調(diao)試(shi),可快速布(bu)置(zhi),廣泛運用于(yu)氣象、農業、林業、環(huan)保(bao)、海(hai)洋、機(ji)場、港(gang)口(kou)、科學考(kao)察、校(xiao)園教育等領域。
二(er)、氣象監測系統產(chan)品特點
1、低功耗采集器:靜態(tai)功耗小于50uA
2、標(biao)配(pei)GPRS聯(lian)網、支持擴展藍(lan)牙、有線傳輸(shu)
3、7寸安卓觸屏(ping),版本:4.4.2、四核Cortex?-A7,512M/4G(選配)
4、支持modbus485傳感器擴展
5、太陽能(neng)充電管理MPPT自動功率(lv)點跟蹤
6、三米碳鋼支架,兩節法蘭盤對接
7、短信(xin)報警(jing),超限后向指定的手機上發送短信(xin)
8、不(bu)銹鋼材(cai)質防護(hu)箱,耐腐蝕、抗(kang)氧化,防水(shui)等級IP66
三(san)、氣(qi)象監測系統技(ji)術參數
1)采集器(qi)供(gong)電(dian)接口:GX-12-3P插頭,輸(shu)(shu)入電(dian)壓5V,帶RS232輸(shu)(shu)出Json數(shu)據(ju)格式,采集器(qi)供(gong)電(dian):DC5V±0.5V峰值電(dian)流(liu)1A,
2)傳感器(qi)modbus、485接口:GX-12-4P插頭,輸出供電(dian)(dian)電(dian)(dian)壓(ya)12V/1A,設備配置接口:GX-12-4P插頭,輸入電(dian)(dian)壓(ya)5V
3)太陽能供(gong)電(dian)、配置鉛酸電(dian)池,可選配30W 20AH/50W 40AH/100W 100AH.充電(dian)控制器:150W,MPPT自動(dong)功率(lv)(lv)點跟蹤,效率(lv)(lv)提高(gao)20%
4)數據(ju)上傳(chuan)間隔:1分(fen)鐘(zhong)-1000分(fen)鐘(zhong)可調
5)7寸(cun)安卓觸屏(ping)(ping),屏(ping)(ping)幕尺寸(cun):1024*600 RGB LCD(選配)
6)部分傳感器參數
名 稱 | 測量范圍 | 分(fen) 辨 率 | 準(zhun) 確(que) 度 |
環境溫度 | -40~+60℃ | 0.01℃ | ±0.3℃ |
相對濕度 | 0~100%RH | 0.1%RH | ±3%RH |
光照強度 | 0-200000Lux | 1Lux | ±2% |
大氣壓力 | 3300-1100hpa | 0.1HPa | ±0.3HPa |
露點溫度 | -20~+50℃ | 0.1℃ | ±0.5℃ |
土壤溫度 | -50~+80℃ | 0.1℃ | ≤±0.2℃ |
土壤濕度 | 0~100% | 0.1% | ±2% |
土壤鹽分 | 0-20ms | ±0.1ms | ±2% |
土壤PH | 0-14 | 0.1 | ±0.2% |
風 向 | 0~360°(16方向) | 1/16 | <3°(>1.0m/s) |
風 速 | 0~30m/s | 0.01m/s | ±(0.1+0.03V)m/s |
雨(yu) 量 | ≦4mm/min | 0.01mm | ±0.2mm |
紫外輻射 | 0~70W/㎡ | 1W/㎡ | ±2% W/㎡ |
日(ri)照時數 | 0~24h | 0.1 h | ±2%h |
總輻射 | 0-2000W/m2 | 0.1W/m2 | 光(guang)譜(pu)范圍:300-3000nm |
光合有效輻射 | 400~700nm | 靈 敏 度:10~50μv/μmol·m-2·s-1 | |
7)整機(ji)取得國家氣象(xiang)計量站校準證書(shu)
8)生產(chan)企(qi)業(ye)具(ju)有ISO質(zhi)量管(guan)理體系、環境管(guan)理體系和職業(ye)健康管(guan)理體系認證
9)生產企業(ye)具有(you)計算(suan)機(ji)軟件注冊(ce)證書
10)生產企業(ye)為3A級信(xin)用企業(ye)
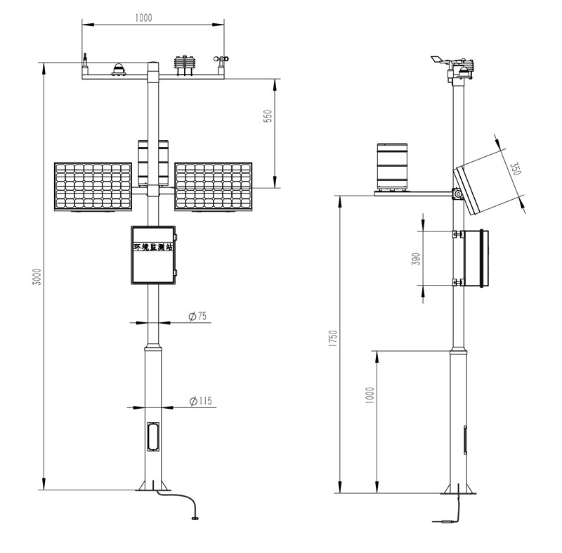
四、氣(qi)象(xiang)監測(ce)系統產品尺寸(cun)圖

五(wu)、氣象監測系統產品結構圖

六、氣象監測系(xi)統上位機軟件介(jie)紹
1、PC單機版數據接收、存儲、查看、分析軟件(jian)
2、支持串口數據接收(shou)、處理(li)、展(zhan)示
3、支持json字符串、modbus485等(deng)通信(xin)方式
4、可自(zi)設(she)置存儲時間,modbus485采集模式下(xia)可自(zi)設(she)置采集時間
5、支(zhi)持(chi)自助增加(jia)、刪除、修改監(jian)測參數的協議、名(ming)稱(cheng)、圖標等
6、支持數據后(hou)處理(li)功能(neng)
7、支持外置運行javascript腳本
七(qi)、氣象監測系統安卓APP介紹
1、安卓單(dan)機版數據接收(shou)、存(cun)儲、查(cha)看、分析軟件(jian)
2、支持藍牙(ya)數(shu)據接收
3、手機休眠后軟件(jian)后臺接收(shou)、處(chu)理(li)
4、json數(shu)據自動添加設備(bei),modbus設備(bei)支持掃碼添加設備(bei)
5、支(zhi)持(chi)歷史數(shu)據查看、分析、導出表格,支(zhi)持(chi)曲線展示、單(dan)數(shu)據點查看。
6、支持數據后處理(li)功能
7、支(zhi)持(chi)外置運行javascript腳本
八、氣象(xiang)監測系統(tong)云平臺介紹
1、CS架構軟件平臺,支持手機、PC瀏覽(lan)器直接觀測、無需(xu)額外安裝軟件。
2、支持(chi)多帳號、多設備登錄
3、支持(chi)實時數據(ju)展(zhan)示(shi)與歷史數據(ju)展(zhan)示(shi)儀表(biao)板
4、云(yun)服務器、云(yun)數(shu)據存(cun)儲,穩(wen)定可靠(kao),易于擴展,負載均衡。
5、支持短信(xin)報警及閾值設置(zhi)
6、支持地圖顯示、查看(kan)設備信息。
7、支(zhi)持數(shu)據(ju)曲(qu)線分析
8、支持數(shu)據導出表格形式
9、支持數據轉(zhuan)發,HJ-212協議(yi),TCP轉(zhuan)發,http協議(yi)等。
10、支(zhi)持數據后處(chu)理(li)功能
11、支持外置(zhi)運行javascript腳本(ben)
本文地址://jxhgyq.com/1298.html




風途首頁
電話咨詢
產品中心